Healing Garden Enlargement with Renders Below
Current construction of view to the left
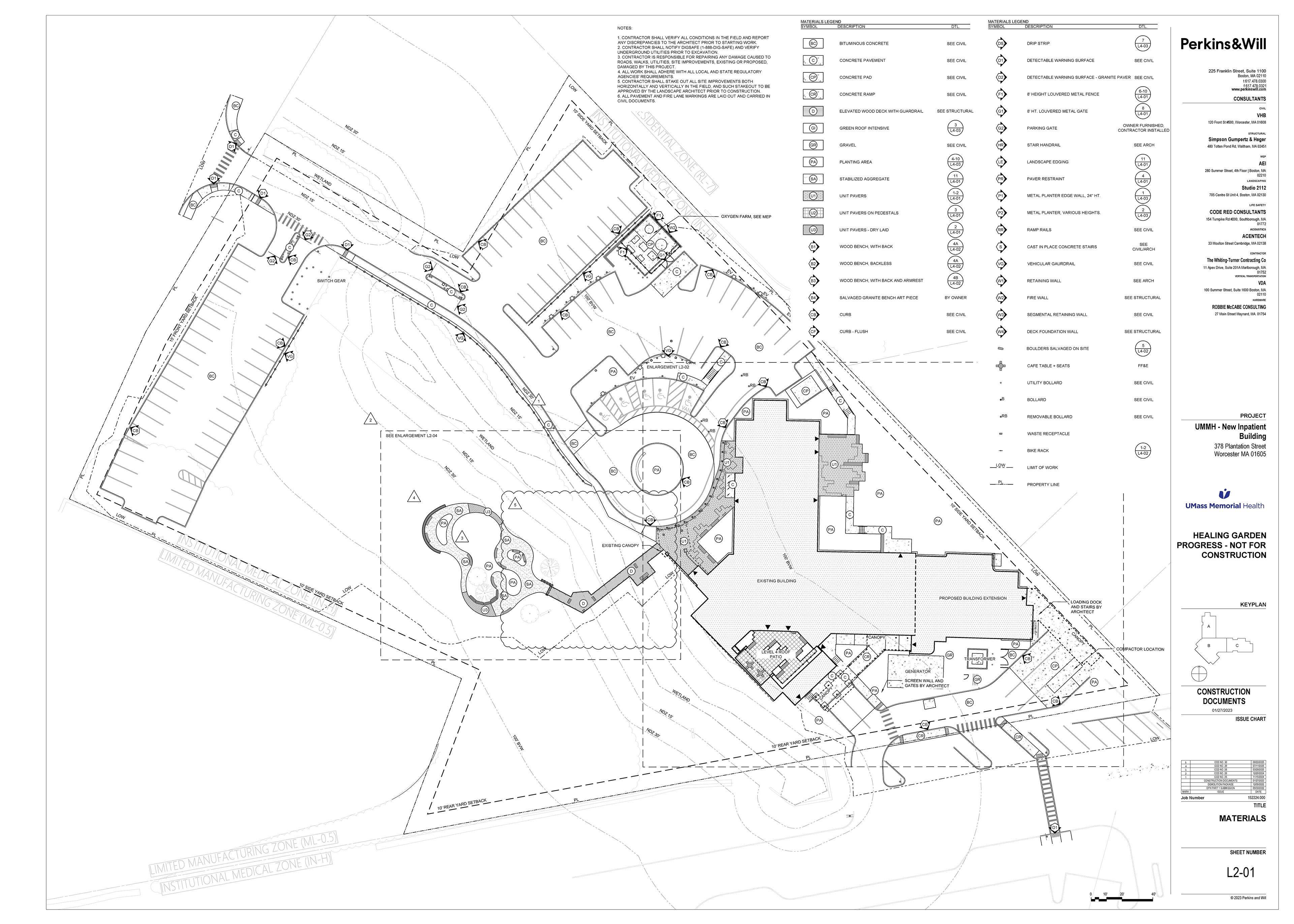
Project with Studio2112 Landscape Architects. Landscape design for new inpatient care facility in Worcester, Massachusetts. Site amenity spaces include: roof top garden, patio and seating areas, and healing garden with boardwalk access.
Healing Garden Enlargement with Renders Below